くらし・手続き
ゴミ・リサイクル
放射線量情報
届出・証明
税金
住まい・土地
防災
バス時刻表・路線図
交通安全・住民運動
環境衛生
簡易水道・下水道
住宅・宅地・除雪
気候変動対策
子育て・教育
社会教育
保育所
学校教育
赤ちゃんとお母さん
各種手当・申請
健康・福祉
障害者のために
福祉サービス
高齢者のために
健康のために
ヘルプマーク・ヘルプカード
年金・国保
夜間休日病院
蘭越診療所
しごと・産業
農業・農地
動物・環境
林業
風力発電
太陽光発電
商工労働
観光・あそび
遊ぶ
見る
買う
温泉・泊まる
町政
公共施設
観光情報
入札
統計
人事・採用
広報
取り組み・施策
らんこしの紹介
各種宣言
役場
選挙
議会
オープンデータ
町のスケジュール
各課連絡先
MENU
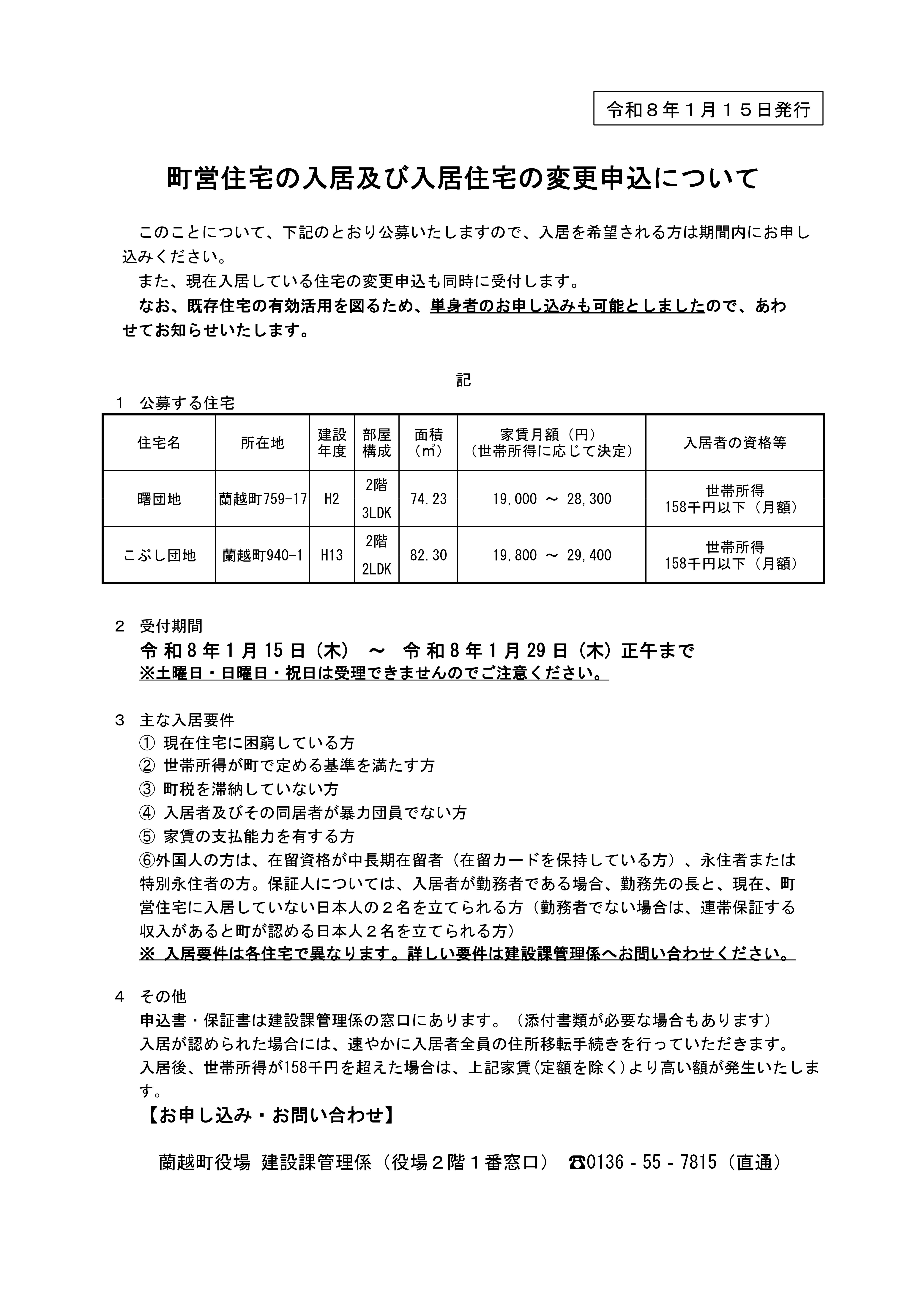
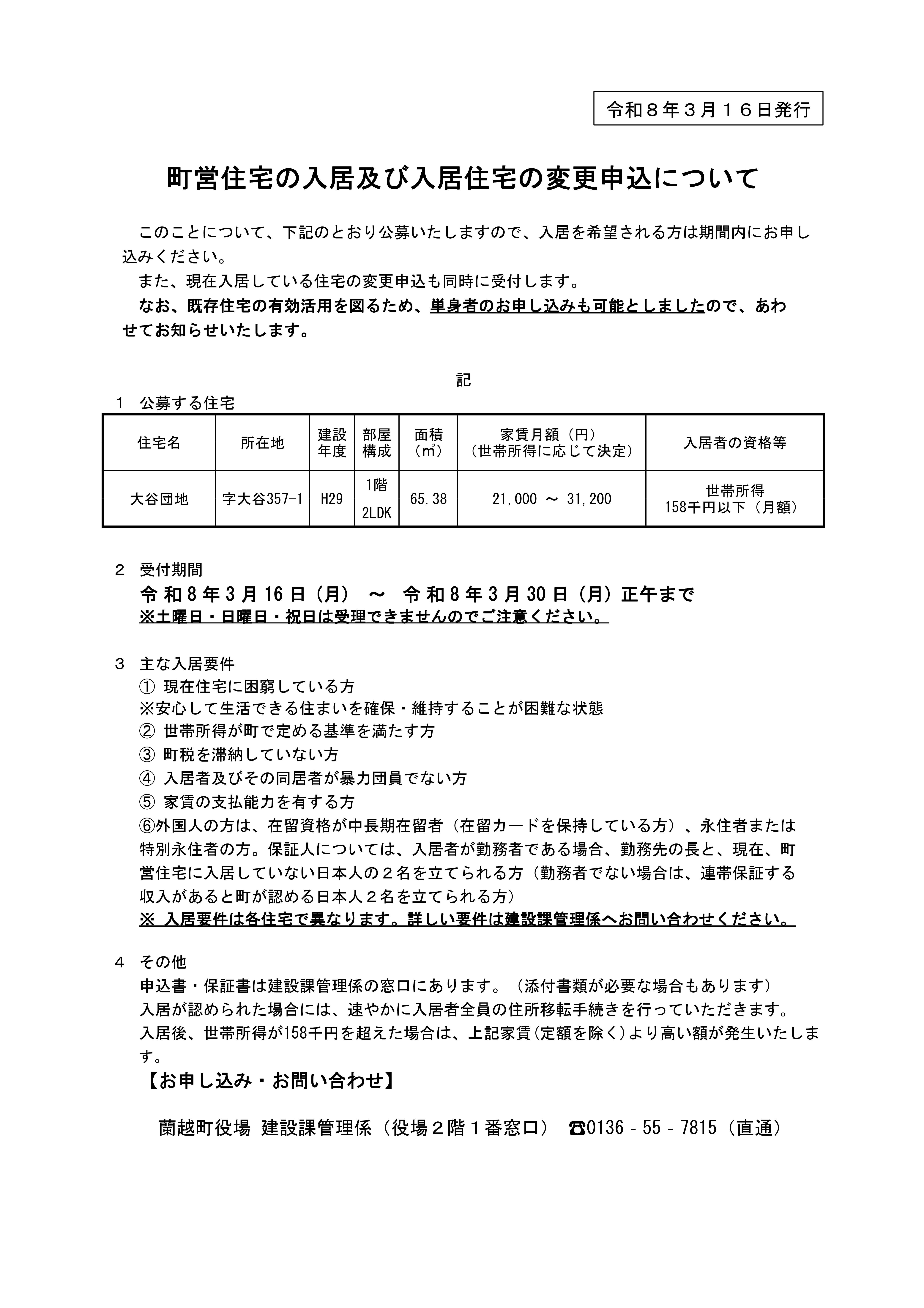
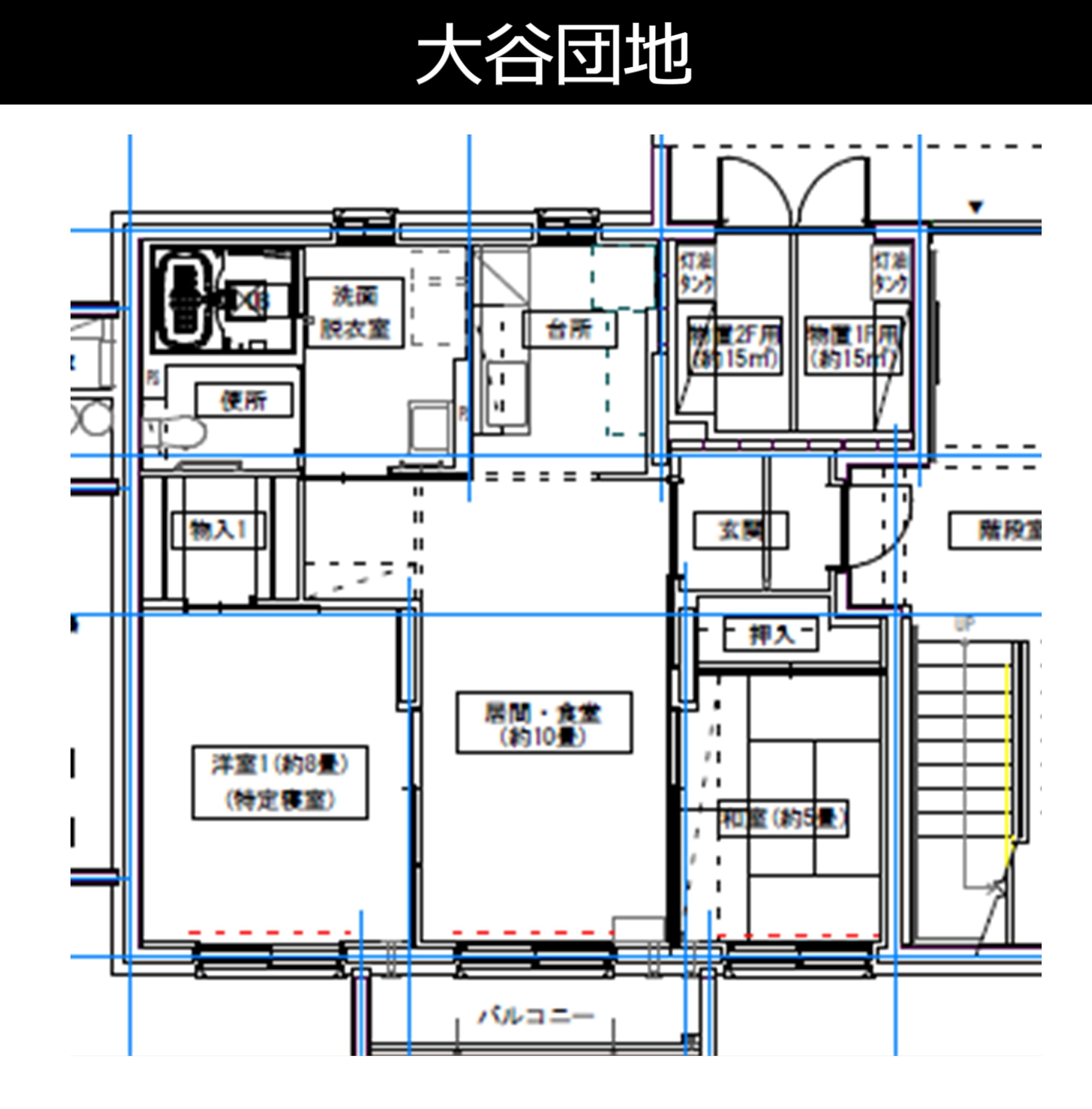
町営住宅の入居及び入居住宅の変更申込について
ホーム
お知らせ
町営住宅の入居及び入居住宅の変更申込について
かんたん検索
妊娠・出産
子育て
学校
住民票・証明
結婚・離婚
引っ越し・住まい
ごみ
医療
高齢・介護
救急